連島町連島 土地

250万円

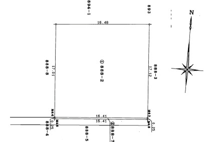
岡山県倉敷市連島町連島888-2

水島臨海鉄道「弥生」駅徒歩21分

水島臨海鉄道「浦田」駅徒歩25分

水島臨海鉄道「栄」駅徒歩28分

価格
250万円
坪単価
2.93万円(85.21坪)
所在地
岡山県倉敷市連島町連島888-2
交通

水島臨海鉄道弥生」駅 徒歩21分

水島臨海鉄道浦田」駅 徒歩25分

水島臨海鉄道」駅 徒歩28分

土地面積(坪数)
281.71㎡(85.21坪)
建ぺい率 / 容積率
60% / 200%

セールスポイント

日当たりの良い、約85坪のゆったりとした敷地で連島東小学校まで徒歩8分の立地です

ポイント

3駅以上利用可 南側道路面す 建築条件なし 2駅利用可 平坦地

担当者のコメント

日当たりの良い、約85坪のゆったりとした敷地です!
連島東小学校まで徒歩8分、ハローズ連島店やニシナフードバスケット連島中央店まで徒歩7分の便利な立地です。日当たりも良いので、家庭菜園などにも最適です♪

基本情報

販売区画数
-
総区画数
-
土地面積(坪数)
281.71㎡(85.21坪)
坪単価
2.93万円
私道負担面積
割合
-
セットバック
要 記載なし
建ぺい率 /
容積率
60% / 200%
高圧線下面積
-
傾斜地部分面積
-
路地状敷地
-
地目
宅地
地勢
平坦
造成工事
完了予定
-
土地権利
所有権
建築条件
都市計画
市街化区域
用途地域
第一種中高層住居専用
接道状況
一方(南 2.0m)
国土法届出要否
不要
最適用途
-
その他
法令上の制限
-
取引態様
専属専任媒介
現況
更地
引渡条件
-
引渡時期
相談
開発許可番号
-
取引条件の
有効期限
2026年03月16日

設備条件

設備条件
  • プロパンガス / 公営水道 / 浄化槽排水
設備(その他)
    水道13㎜引込済

その他

物件番号
93962199
管理コード
4308
情報更新日
2026年03月05日
次回更新予定日
2026年03月16日
取扱会社
  • 有限会社開成不動産
  • 岡山県倉敷市堀南628-12 
  • TEL:0120-311-461
  • 岡山県知事 (11) 第2689号
備考
物件から徒歩6分のところに、薬や日用品を買うのに便利なザクザク連島東店があります!周辺、買い物施設充実な環境です!

周辺施設

  • 連島東保育園の画像

    保育園

    連島東保育園

    201m(3分)

  • ザグザグ連島東店の画像

    その他

    ザグザグ連島東店

    362m(5分)

  • 小川内科医院の画像

    内科

    小川内科医院

    427m(6分)

  • ザクザク連島東店の画像

    ドラッグストア

    ザクザク連島東店

    436m(6分)

  • 倉敷市立連島東幼稚園の画像

    幼稚園

    倉敷市立連島東幼稚園

    457m(6分)

  • 倉敷連島中央郵便局の画像

    郵便局

    倉敷連島中央郵便局

    459m(6分)

  • 小川えりファミリー歯科の画像

    歯科

    小川えりファミリー歯科

    486m(7分)

  • 倉敷市立連島東小学校の画像

    小学校

    倉敷市立連島東小学校

    511m(7分)

  • ニシナフードバスケット 連島中央店の画像

    スーパー

    ニシナフードバスケット 連島中央店

    564m(8分)

  • ハローズ 連島店の画像

    スーパー

    ハローズ 連島店

    616m(8分)

支払いシミュレーション

月々の支払額
購入希望物件価格
万円
頭金
万円
金利
%
返済額(ボーナス1回分)
万円
返済期間

※ボーナスは自動で年2回分で計算されます。

近隣の物件

  1. 北畝六丁目 売地

    倉敷市北畝6丁目

    - (158.94㎡)

    998万円

  2. 西岡 売地

    倉敷市西岡

    - (273.33㎡)

    1,1409,840

  3. 堀南 売地

    倉敷市堀南

    - (194.49㎡)

    2,207万円

  4. 倉敷市連島町連島 売地

    倉敷市連島町連島

    - (681.00㎡)

    2,060万円

よく見られている物件

  1. 笹沖 売地

    倉敷市笹沖

    - (189.69㎡)

    1,380万円

  2. 西岡 売地

    倉敷市西岡

    - (273.33㎡)

    1,1409,840

  3. 連島町連島 土地

    倉敷市連島町連島

    - (281.71㎡)

    250万円

  4. 大内売地

    倉敷市大内

    - (146.67㎡)

    1,175万円

連島町連島 土地

連島町連島 土地

250万円

-(281.71㎡)

お気軽にお問い合わせください

無料お問い合わせ

有限会社開成不動産

0120-311-461

09:00~18:00

(休:(水)、第二(火)、第三(日)、第四(木))